






GL 系列冷卻器
GLC 型冷卻器
GLL 型立式冷卻器
GLL 型臥式冷卻器
GLQ型汽輪機配套冷卻器
SGLL型雙聯臥式油冷卻器
LQ 系列冷卻器
2LQFW 型冷卻器
2LQFL 型冷卻器
2LQF6W 型冷卻器
2LQF1W系列冷卻器
2LQGW 型冷卻器
4LQF3W 型冷卻器
2LQF1L 型冷卻器
LC 系列冷卻器
SL旋流式冷卻器
LQG系列船用冷卻器
高效翅片冷卻器
海水/船用冷卻器
OR系列60~1200型冷卻器流量60L/min~1200L/min,重量8.5kg~72kg,換熱面積0.26m2~4.4m2。采用多管式,傳熱面積廣,良好的傳熱管,不漏油,裝配簡易。抗污染,適用于較臟和高粘度油液的冷卻,也適用于水對水、水對氣的熱交換。

1、傳熱面積廣:本冷卻器的傳熱管采用多管式裸管的設計,其接觸面積廣,冷卻面積大,傳熱效率高,冷卻效果佳。
2、良好的傳熱管:采用導熱性良好的99.9%純銅(采用純紅銅管熱傳導率0.95以上),為較適合散熱的冷卻管。
3、不漏油:因冷卻器板管與本體采用一體化設計,可以避免水與油混合的困擾,同時在出廠前經過氣密測試確實緊密,故能達到防漏的目的。
4、裝配簡易:腳座可360度自由轉動,對于冷卻器本體隨意更換方向及角度裝配,通過腳座可直接焊接在母機或油槽的任何位置,既方便又簡單。
| 型號 Model |
工作壓力(油):≤1.0MPa | 介質粘度:(20~300)×106 m2/s (厘沲) | |||||||||||||||
| 工作壓力(水):≤1.0MPa | 換熱系數:~200 W/m2.k (~170 kcal/m2.h.℃) | ||||||||||||||||
| 參考 流量 L/min |
換熱 面積 m2 |
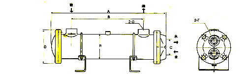
L | C | L1 | S | d | D | B | b | H | h | Ro | Rw | W | E×F | 重量 Kg | |
| OR-60 | 60 | 0.26 | 455 | 305 | 77 | 250 | ф89 | ф120 | 115 | 95 | 140 | 77 | Rc3/4 | Rc3/4 | 46 | 7×10 | 8.5 |
| OR-100 | 100 | 0.38 | 555 | 405 | 80 | 320 | ф102 | ф135 | 144 | 106 | 166 | 96 | Rc3/4 | Rc3/4 | 58 | 10×20 | 12.5 |
| OR-150 | 150 | 0.62 | 560 | 385 | 100 | 300 | ф140 | ф175 | 174 | 130 | 213 | 117 | Rc1 1/4 | Rc1 | 70 | 13×16 | 19 |
| OR-250 | 250 | 1.3 | 760 | 585 | 500 | 24 | |||||||||||
| OR-350 | 350 | 2 | 1165 | 990 | 900 | 32.5 | |||||||||||
| OR-600 | 600 | 2 | 1175 | 950 | 135 | 850 | ф165 | ф207 | 205 | 160 | 248 | 138 | Rc2 | Rc1 1/4 | 80 | 13×16 | 40 |
| OR-800 | 800 | 3 | 1700 | 1490 | 1400 | 54 | |||||||||||
| OR-1000 | 1000 | 3.7 | 2140 | 1890 | 1800 | 62 | |||||||||||
| OR-1200 | 1200 | 4.4 | 2530 | 2270 | 2180 | 72 | |||||||||||
| 型號 | A | B | C | R | D | G | F | 流量 |
| OR-60 | 450 | 305 | 45 | 89 | 125 | 3/4 | 3/4 | 60 |
| OR-100 | 555 | 403 | 68 | 114 | 145 | 3/4 | 3/4 | 100 |
| OR-150 | 575 | 385 | 85 | 140 | 175 | 11/4 | 1 | 150 |
| OR-250 | 780 | 585 | 85 | 140 | 175 | 11/4 | 1 | 250 |
| OR-350 | 1180 | 990 | 85 | 140 | 175 | 11/4 | 1 | 350 |
| OR-600 | 1175 | 950 | 90 | 165 | 200 | 2 | 11/4 | 600 |
| OR-800 | 1700 | 1490 | 90 | 165 | 200 | 2 | 11/4 | 800 |
| OR-1000 | 2140 | 1890 | 90 | 165 | 200 | 2 | 11/4 | 1000 |
| OR-1200 | 2530 | 2270 | 90 | 165 | 200 | 2 | 11/4 | 1200 |
1、本冷卻器只適用于淡水,使用海水須特別訂做。冷卻器冷卻管之油口兩方可自由決定出入口,油液本身流向不受限制,而水之進口一定要由下方進入,由上方出水口出水;
2、較高壓力:油側10kg/cm2,水側7kg/cm2;
3、在冷卻水可能出現凍結的季節,不工作時應將冷卻器內的水放出;
4、每六個月清洗散熱管(紫銅管內徑),冷卻器水側(限傳熱管內側)約每四個月或半年,清除水垢一次,方可保持良好冷卻效率,高粘度油液使用時請將油量與水量保持等量。以保持良好的冷卻效果;
5、水入口及油入口溫度差在80℃以上時不能裝用。食品及化學藥品不能使用。